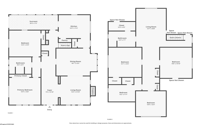
Welcome to 539 Main Street in Addison, Pennsylvania—a truly special find nestled in the heart of the Laurel Highlands Mountains. Perfectly situated minutes from Yough Lake, Ohiopyle State Park, Nemacolin Woodlands, and iconic Frank Lloyd Wright tourist attractions such as Fallingwater and Kentuck Knob, this home places you at the center of Western Pennsylvania’s finest outdoor recreation, from hiking and biking to skiing, fishing, and whitewater rafting. Step inside and you’ll instantly be captivated by the charm, character, and timeless elegance of this six-bedroom, two-bath home. Stunning original woodwork, pocket doors, built-ins, and abundant natural light give each room warmth and personality. With 9-foot ceilings and wide hallways, the home feels open yet inviting. The flexible layout offers the option for separate living quarters on the second floor—ideal for extended guests, or continued use as an established Airbnb. Enjoy everyday comfort with thoughtful updates including a new heating system and convenient laundry on both the first floor and basement. Relax in the sunroom or unwind in the covered porch hot tub while soaking in peaceful mountain views. Outside, the property’s 2.54 flat acres include the original carriage house and a detached garage, offering plenty of storage or potential for creative repurposing. Whether you’re searching for a grand primary residence, multi-generational home, or an investment opportunity in one of Pennsylvania’s most scenic regions, 539 Main Street beautifully blends historic elegance with modern livability—all surrounded by the natural splendor of the Laurel Highlands.



































































































