Property Description
Beautiful, remodeled split-level home. The home was stripped to the studs and remodeled in 2017. It has 2/3 bedroom, 4 bathrooms on .55 acres. Private, park-like backyard that is fenced in with above ground 12 x 24 pool. New windows, doors and roof. Hickory cabinets and granite countertop in the kitchen. Laminate and tile flooring throughout the home. Each bedroom has it’s own bathroom. 14 x 14 utility shed. Paved driveway in 2025. Two majestic maple trees and rhododendron in the backyard. Excellent location to get to Morgantown and Kingwood. Country living within city limits.
Features
: Gas
: Central Air, Ceiling Fan(s)
: Finished, Garage Access, Drop Ceiling, Full
: Privacy, Wood, Full
: No
: 3+ Cars
Utilities
: Yes
Address Map
US
WV
Reedsville
26547
Grove
54
Avenue
0
W80° 12' 16.5''
N39° 30' 20.9''
Preston County
Additional Info
MOUNTAINPATH PROPERTIES, LLC
403
3302
S
54 S Grove Avenue
New
West Preston School
West Preston Middle
Preston High
Other
Block,Stone,Vinyl
Dishwasher,Microwave,Range,Refrigerator
Interior Access Only
Laminate,Tile
: Laminate Flooring
: Landscaped, Outside Lighting, Porch, Storm Doors, Private Yard, Storm Windows, Storage Shed/outbuilding, Aboveground Pool
: 1 Car, Integral
: Shingles
: No
: Primary Bath, Electric Stove Connection, Washer Connection, Electric Dryer Connection
: Smoke Detectors, Garage Door Opener, Carbon Monoxide Detectors, Cable Ready, Hot Water Heater Elec., High Speed Internet Ready
: No
: Concrete, Block
No
: Frame, Block
: City Sewer, City Water
: Split Level
$900
2025
Preston
1
Travel Route 7 from Morgantown to Reedsville. At intersection in Reedsville, take a left. Turn right onto Park Avenue. At the stop sign, take a left onto Valley Street. At the stop sign, take a right on S. Grove Street. House is the 3rd one on the left.
04-22-2026 18:26:49
$181
627
: Level
: No
Single Family Detached For Sale
54 Grove Avenue, Reedsville, West Virginia 26547
3 Bedrooms
4 Bathrooms
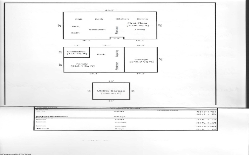
1,662 Sqft
$300,000
Listing ID #10164402
Basic Details
Property Type : Single Family Detached
Listing Type : For Sale
Listing ID : 10164402
Price : $300,000
Bedrooms : 3
Bathrooms : 4
Square Footage : 1,662 Sqft
Year Built : 1973
Lot Area : 0.55 Acre
Status : Active
Days On Market : 0
View : Neighborhood
Agent info
Contact Agent































































